Ufficio in affitto

Borgosatollo, ufficio Piazzale Jhon Fitzgerald Kennedy
Informazioni in agenzia
6 locali 6 locali
150 Mq 150 Mq
2 bagni 2 bagni

Ufficio in affitto

Borgosatollo, ufficio Piazzale Jhon Fitzgerald Kennedy

Descrizione annuncio

COSA SAPERE DELL'IMMOBILE:

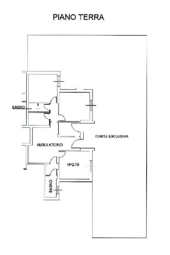
Proponiamo in locazione ufficio direzionale, ubicato nel centro del paese, di circa 130 mq a piano terra + 200 mq di corte esclusiva con ingresso privato.

La soluzione presenta n. 3 stanze uso ufficio/sala riunione, disimpegno con ingresso centrale e reception, ripostiglio, servizio igienico privato e servizio igienico a norma per i disabili.

L'immobile oggetto di locazione è stato rinnovato nel 2005 a livello di serramenti con vetri doppi + apertura vasistas, porta d'ingresso con maniglione antipanico e vetrata d'ingresso antisfondamento con serranda automatica.

Gli impianti risultano in buono stato e la funzionalità degli spazi interni offre soluzioni ideali a varie attività (mediche, settore terziario, progettazione, commercialisti e contabili, studi privati, ecc).

E' presente una corte privata di circa 200 mq comprensiva di giardino privato.

Il piazzale esterno presenta numerosi parcheggi liberi.

DISPONIBILTA' DA SUBITO!

NO SPESE CONDOMINIALI!

UBICAZIONE E CONTESTO

L'immobile sorge a Borgosatollo è un comune di circa 10.000 abitanti circa della provincia di Brescia, posto immediatamente a sud della città.
Il territorio borgosatollese è attraversato ad occidente dall'Autostrada A21 Torino-Piacenza-Brescia. A ridosso dei confini comunali a meridione è presente il raccordo autostradale Ospitaletto-Montichiari che serve Borgosatollo tramite l'omonimo casello autostradale. Oltre a questo, i caselli più vicini sono quelli di Brescia Centro, a Brescia, e di Brescia Sud, in territorio di Poncarale.
Il comune fa parte della rete urbana di trasporti della provincia di Brescia ed è pertanto servito dalla linea 14 Metro Volta-Borgosatollo-Capodimonte, con alcune corse Stazione di complesso è ubicato nell' area a destinazione produttiva , caratterizzata dalla presenza di molteplici edifici artigianale/industriale di medio/grandi dimensioni. La zona è ben servita dalla viabilità ordinaria, è dotata di parcheggi e facilmente raggiungibile dalle principali vie di comunicazione ; a breve distanza si trovano i caselli autostradali della A4 e A11.

Mostra tutto

Nelle vicinanze

Trasporto pubblico Trasporto pubblico
San Zeno-Folzano
San Zeno-Folzano
2,8 Km
Borgosatollo via IV Novembre n 132
Borgosatollo via IV Novembre n 132
270 m
Borgosatollo via IV Novembre n 149
Borgosatollo via IV Novembre n 149
270 m
Ricariche auto elettriche Ricariche auto elettriche
Provide Cars San Zeno | EnelX
3,0 Km
Scuole Scuole
Scuola Materna Gianni Rodari
660 m
Scuola Primaria Angelo Canossi
2,5 Km
Scuola Secondaria di Primo Grado Nella Berther
2,6 Km
Farmacia Farmacia
Farmacia Bodini
550 m
Farmacia Dott. Abbiati
2,6 Km
Supermercati Supermercati
Conad
510 m
Il Rossetto
2,7 Km
Ipersimply
3,0 Km
Negozi Negozi
Da Frank
3,0 Km
Negozi
3,0 Km
Bar Bar
Discoteca Paradiso
2,2 Km
Bar La Piazzetta
2,3 Km
Bar 25010
2,5 Km
Isla de Tortuga
2,7 Km
Bar Più o Meno
2,7 Km
Ristoranti Ristoranti
Trattoria Naviglio
2,4 Km
Ristorante al Forchettone
2,5 Km
La Lobsteria
2,6 Km
Mostra tutto

Caratteristiche

Rif.:
60822565
Piano:
1 di 3 (Piano terra)
Posti auto:
10
Condizionamento:
Autonomo
Ascensore:
No
Riscaldamento:
Autonomo
Mostra tutto
Prezzo Prezzo
Informazioni in agenzia

Classe Energetica

Questo immobile è esente da classe energetica
Anno di costruzione:
1990
Riscaldamento:
Autonomo
Tipo impianto:
Ad aria
Tipo alimentazione:
Metano

Ti interessa visionare l'immobile?

Fissa un appuntamento  Fissa un appuntamento

Richiedi informazioni

Clicca su Leggi per aprire l'informativa
* Questi campi sono obbligatori
Affiliato
Servizi Per L'Impresa Srl
Via E. Mattei, 13-15 25020 Poncarale (BS)

Il nostro staff


  • Fabrizio Calabria
    Affiliato

  • Matteo Costanzi
    Responsabile

  • Stefano Cividati
    Collaboratore

  • Luana Tidoni
    Collaboratrice
Via E. Mattei, 13-15 25020 Poncarale (BS)
Zona: Poncarale-Bagnolo Mella-S.Zeno N.-Flero-Borgosatollo.-Montirone-Azzano Mella-Barbariga
Mostra su mappa
Orari: LUNEDÌ - VENERDÌ dalle 8:30 alle 13:00 e dalle 14:30 alle 19:00; SABATO dalle 8.30 alle 12.30
Affiliato
Servizi Per L'Impresa Srl
Via E. Mattei, 13-15 25020 Poncarale (BS)

2026 Tecnocasa Franchising S.p.A. - P. IVA 08365160152 - Via Monte Bianco 60/A 20089 Rozzano (MI). Ogni agenzia ha un proprio titolare ed è autonoma. Privacy policy | Policy utilizzo | Cookie policy