Capannone in affitto

Poncarale, Via Galilei
€ 2.300 / mese
3 locali 3 locali
380 Mq 380 Mq
2 bagni 2 bagni

Capannone in affitto

Poncarale, Via Galilei

Descrizione annuncio

DESCRIZIONE E PARTICOLARITA'

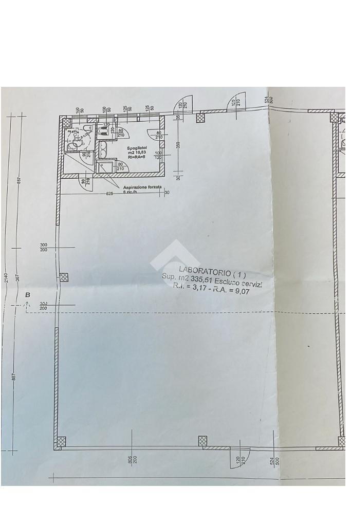
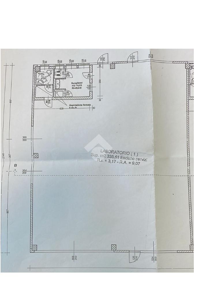
Nel comune di Poncarale, proponiamo in locazione un capannone di circa 380 mq situato al piano terra. La struttura è ideale per attività che necessitano di ampi spazi, garantendo funzionalità e praticità.

L'immobile presenta un'altezza interna di 8 m sotto trave ed in colmo di 10 m. Il capannone è dotato di due portoni 5 x 5 tramite i quali si accede ad un ampio piazzale privato di circa 700 mq. All'immobile si accede tramite ingresso carraio di circa 6,80 m.

Vi è presente inoltreun locale spogliatoio con due servizi igienici e una doccia, uno di questi con accesso disabili.

UBICAZIONE E CONTESTO

La posizione strategica nel comune di Poncarale assicura un facile accesso alle principali vie di comunicazione, facilitando la logistica e i trasporti. L'immobile rappresenta una soluzione interessante per chi cerca un ambiente di lavoro ben organizzato e facilmente accessibile.

Mostra tutto

Nelle vicinanze

Trasporto pubblico Trasporto pubblico
Trasporto pubblico
350 m
Via Dom Maccabiani
Via Dom Maccabiani
760 m
Scuole Scuole
Scuola dell'Infanzia
1,8 Km
Scuole
1,9 Km
Scuola Secondaria di Primo Grado Emiliano Rinaldini
2,0 Km
Scuola Primaria Gianni Rodari
2,0 Km
Scuola Secondaria di Primo Grado
2,5 Km
Farmacia Farmacia
Farmacia Bicchierai Bandera
2,7 Km
Supermercati Supermercati
Italmark
2,2 Km
Conad Superstore
2,4 Km
LD Market
2,4 Km
Negozi Negozi
Keys
690 m
Daniel Market
2,3 Km
La Forneria
2,3 Km
Bar Bar
Bar
2,4 Km
Ristoranti Ristoranti
Primo Piano
300 m
Ristoranti
1,5 Km
La Rocca
2,1 Km
BEFeD Flero
2,6 Km
Trattoria Bontempi
2,8 Km
Mostra tutto

Caratteristiche

Rif.:
61181582
Piano:
Terra di 1
Totale piani:
1
Condizionamento:
Assente
Ascensore:
No
Riscaldamento:
Assente
Mostra tutto
Prezzo Prezzo
€ 2.300 / mese
Spese annue Spese annue
€ 0

Classe Energetica

G
G
G
G
G
G
G
G
G
EP globale non rinnovabile:
415.77 kW h/m² anno
EP globale rinnovabile:
2.82 kW h/m² anno
EP invernale del fabbricato:
EP estiva del fabbricato:
Anno di costruzione:
2000
Riscaldamento:
Assente

Ti interessa visionare l'immobile?

Fissa un appuntamento  Fissa un appuntamento

Richiedi informazioni

Clicca su Leggi per aprire l'informativa
* Questi campi sono obbligatori
Affiliato
Servizi Per L'Impresa Srl
Via E. Mattei, 13-15 25020 Poncarale (BS)

Il nostro staff


  • Fabrizio Calabria
    Affiliato

  • Matteo Costanzi
    Responsabile

  • Stefano Cividati
    Collaboratore

  • Luana Tidoni
    Collaboratrice
Via E. Mattei, 13-15 25020 Poncarale (BS)
Zona: Poncarale-Bagnolo Mella-S.Zeno N.-Flero-Borgosatollo.-Montirone-Azzano Mella-Barbariga
Mostra su mappa
Orari: LUNEDÌ - VENERDÌ dalle 8:30 alle 13:00 e dalle 14:30 alle 19:00; SABATO dalle 8.30 alle 12.30
Affiliato
Servizi Per L'Impresa Srl
Via E. Mattei, 13-15 25020 Poncarale (BS)

2026 Tecnocasa Franchising S.p.A. - P. IVA 08365160152 - Via Monte Bianco 60/A 20089 Rozzano (MI). Ogni agenzia ha un proprio titolare ed è autonoma. Privacy policy | Policy utilizzo | Cookie policy