Capannone in vendita

San Zeno Naviglio, Via G. Galilei Traversa III
€ 490.000
7 locali 7 locali
1100 Mq 1100 Mq
2 bagni 2 bagni

Capannone in vendita

San Zeno Naviglio, Via G. Galilei Traversa III

Descrizione annuncio

COSA SAPERE DELL'IMMOBILE

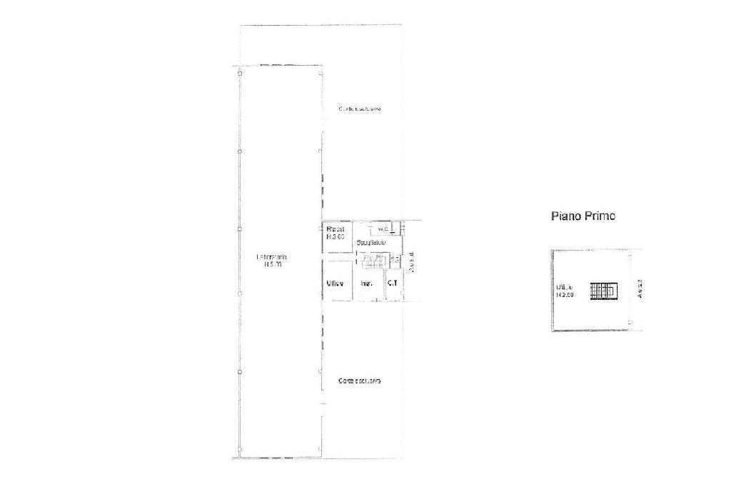
Proponiamo in vendita capannone industriale di 1100 mq comprensivo di sala d'ingresso, uffici, ripostiglio, spogliatoi e servizi igienici con antibagno, sito nella zona industriale di San Zeno Naviglio (BS)


DESCRIZIONE E PARTICOLARITÀ

Lotto industriale di circa 1750 mq composto da superficie coperta di circa 950 mq caratterizzato da capannone con superficie di circa 800 mq (13 x 62) + blocco palazzina di 150 mq (12 x 13) su 2 livelli cadauno ed area di pertinenza esclusiva di circa 700 mq (300 mq sul lato sud e 300 mq sul lato nord con circa 100 mq di zona verde).

Si accede nel lotto direttamente dalla strada principale tramite un cancello carraio

La pavimentazione risulta in cemento nel capannone e piastrellata nel blocco uffici con servizi igienici e spogliatoi.

L'altezza interna del capannone è di circa 6,50 metri sotto-trave e 7,50 in colmo.

Predisposizione carroponte (5 ton) con quota mensola a 5,00 metri.

Sono presenti n. 2 portoni industriali larghi 4,00 ed alti 4,50 metri in corrispondenza delle 2 corti esclusive in modo da offrire una buona viabilità interna degli automezzi e muletti per le operazioni di carico e scarico.

Il consumo dell'acqua è compreso nelle spese condominiali annue di circa 2.000,00.

La palazzina su 2 livelli presenta una scala interna per accedere ai locali e comunica direttamente al capannone.

SI PRECISA CHE I COSTI PER IL RIFACIMENTO DELLA COPERTURA ESISTENTE SARANNO A CARICO DELLA PARTE ACQUIRENTE IN BASE ALLE PROPRIE NECESSITA'.

DISPONIBILE DA SUBITO!

UBICAZIONE E CONTESTO:

Il paese è attraversato dalla strada provinciale BS 45 bis che collega Brescia a Cremona. Dall'ottobre 2010 questa arteria è stata declassata a strada comunale in quanto contestualmente è stata aperta al traffico la cosiddetta deviante, che aggira il centro abitato ad est e che risulta essere gestita dalla provincia. Il territorio comunale è solcato anche dall'autostrada A21 Torino - Piacenza - Brescia. I caselli autostradali più vicini al comune sorgono lungo quest'infrastruttura e sono quello di Brescia Centro, ubicato nel territorio comunale di Brescia, quello di Brescia Sud, posto nel territorio comunale di Montirone. Nella fattispecie, il capannone è sito nella zona industriale di San Zeno 2, a 1 km dal casello autostradale di Brescia Sud e a 3 km dal casello autostradale di Brescia Centro.

Mostra tutto

Nelle vicinanze

Trasporto pubblico Trasporto pubblico
San Zeno-Folzano
San Zeno-Folzano
1,0 Km
Via Risorgimento - sud
Via Risorgimento - sud
810 m
Via Risorgimento - nord
Via Risorgimento - nord
910 m
Ricariche auto elettriche Ricariche auto elettriche
Provide Cars San Zeno | EnelX
2,2 Km
Scuole Scuole
Scuola Primaria Angelo Canossi
990 m
Scuola Secondaria di Primo Grado Nella Berther
1,0 Km
Scuola Materna Gianni Rodari
2,6 Km
Materna Comunale
2,7 Km
Farmacia Farmacia
Farmacia Comunale 03 Folzano
1,1 Km
Farmacia Dott. Abbiati
1,3 Km
Farmacia Bodini
2,5 Km
Supermercati Supermercati
Conad
2,0 Km
Family Market
2,5 Km
Negozi Negozi
Keys
2,3 Km
Bar Bar
Bar La Piazzetta
1,2 Km
Bar 25010
1,3 Km
Bar Più o Meno
2,1 Km
Effebar
2,4 Km
Ristoranti Ristoranti
Trattoria Naviglio
880 m
La Lobsteria
1,6 Km
Ristorante al Forchettone
1,6 Km
Trattoria Le Ferriere
2,0 Km
Primo Piano
2,9 Km
Mostra tutto

Caratteristiche

Rif.:
60781854
Piano:
1 di 2 (Piano terra)
Posti auto:
10
Condizionamento:
Assente
Ascensore:
No
Riscaldamento:
Assente
Mostra tutto
Prezzo Prezzo
€ 490.000
Rata mutuo Rata mutuo
€ 2.328 / mese
Spese annue Spese annue
€ 2.000
Proponi il tuo prezzoProponi il tuo prezzo

Altre caratteristiche

Descrizione dei locali
Bagno Cieco

Classe Energetica

Questo immobile è esente da classe energetica
Anno di costruzione:
1986
Riscaldamento:
Assente

Ti interessa visionare l'immobile?

Fissa un appuntamento  Fissa un appuntamento

Richiedi informazioni

Clicca su Leggi per aprire l'informativa
* Questi campi sono obbligatori

Calcola il tuo mutuo

Semplice e senza impegno
Anticipo

( % )
Mutuo

( % )

pochi semplici passi

inserisci i tuoi dati
Questionario completato
Grazie per aver richiesto un appuntamento senza impegno con un nostro Consulente del Credito e Assicurativo.

Hai inserito correttamente tutti i dati necessari e a breve riceverai una e-mail con un link da convalidare per inviare i tuoi dati.
Affiliato
Servizi Per L'Impresa Srl
Via E. Mattei, 13-15 25020 Poncarale (BS)

Il nostro staff


  • Fabrizio Calabria
    Affiliato

  • Matteo Costanzi
    Responsabile

  • Stefano Cividati
    Collaboratore

  • Luana Tidoni
    Collaboratrice
Via E. Mattei, 13-15 25020 Poncarale (BS)
Zona: Poncarale-Bagnolo Mella-S.Zeno N.-Flero-Borgosatollo.-Montirone-Azzano Mella-Barbariga
Mostra su mappa
Orari: LUNEDÌ - VENERDÌ dalle 8:30 alle 13:00 e dalle 14:30 alle 19:00; SABATO dalle 8.30 alle 12.30
Affiliato
Servizi Per L'Impresa Srl
Via E. Mattei, 13-15 25020 Poncarale (BS)

2026 Tecnocasa Franchising S.p.A. - P. IVA 08365160152 - Via Monte Bianco 60/A 20089 Rozzano (MI). Ogni agenzia ha un proprio titolare ed è autonoma. Privacy policy | Policy utilizzo | Cookie policy